06-4866-6557

【営業時間】10:00~18:30
【定休日】水曜日

電話でのお問い合わせはこちら

06-4866-6557

【営業時間】10:00~18:30 【定休日】水曜日

お問い合わせはこちら

Copyright © 2025 株式会社 K-ROOM. All Rights Reserved.

NEW CONSTRUCTION

吹田市山手町2丁目 新築分譲2号地

吹田市山手町2丁目 新築分譲2号地 sold out

分譲物件

吹田市山手町2丁目 新築分譲2号地

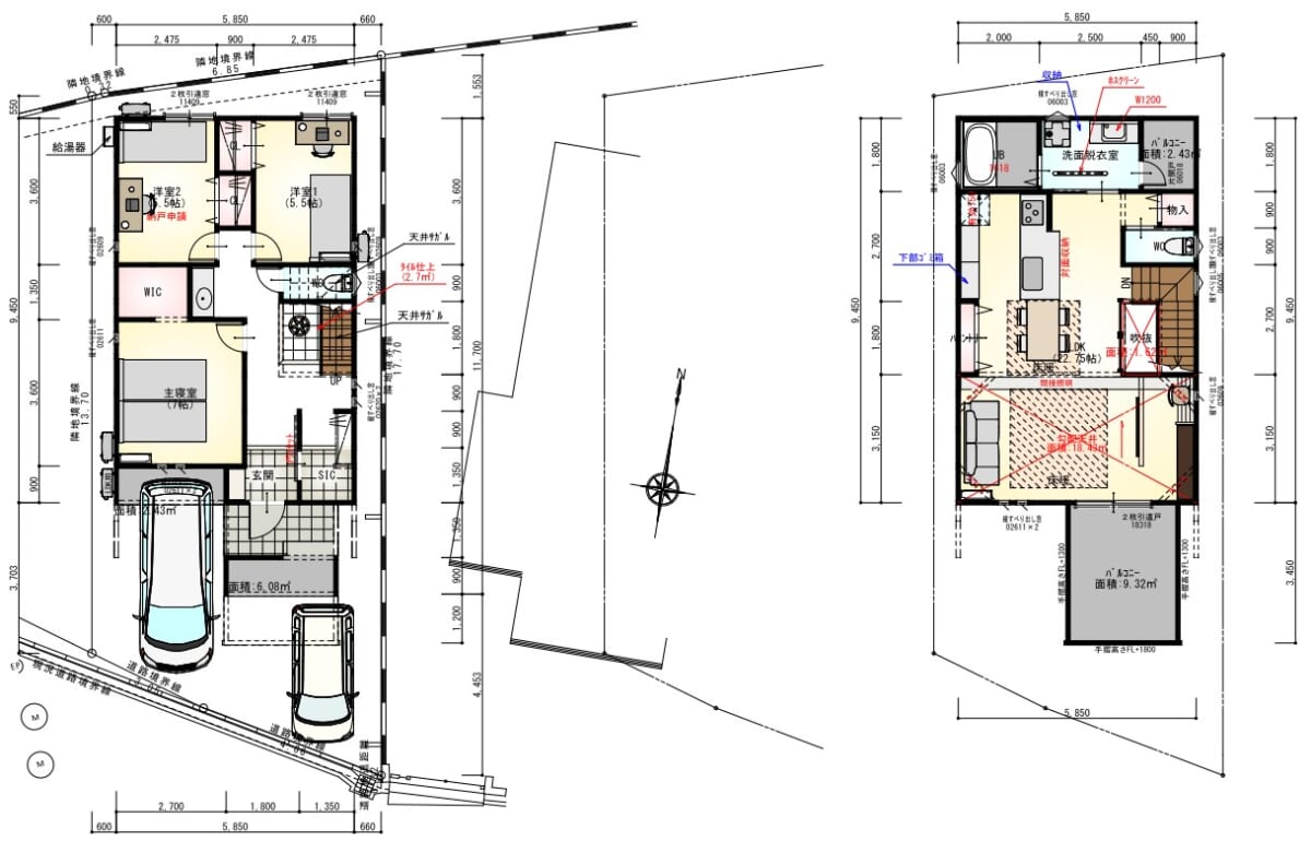
  • 住所

    吹田市山手町2丁目

  • 交通

    阪急千里線「豊津駅」徒歩約7分

  • 土地面積

    112.47㎡

  • 延床面積

    114.82㎡

  • 構造・階数

    木造(W造)/2階建

  • 間取り

    3LDK

  • 価格

    5,980万円

  • 完成時期(築年月)

    2023年4月

LOAN SIMULATOR

ローンシュミレーター

contact

お問い合わせ

ご依頼やご相談など
まずはお気軽にご相談下さい!

来店予約 売却査定 お問い合わせ