06-4866-6557

【営業時間】10:00~18:30
【定休日】水曜日

電話でのお問い合わせはこちら

06-4866-6557

【営業時間】10:00~18:30 【定休日】水曜日

お問い合わせはこちら

Copyright © 2025 株式会社 K-ROOM. All Rights Reserved.

WORKS

桃山公園ロジュマン

  • BEFORE

    桃山公園ロジュマン
  • AFTER

    桃山公園ロジュマン
  • BEFORE

    桃山公園ロジュマン
  • AFTER

    桃山公園ロジュマン

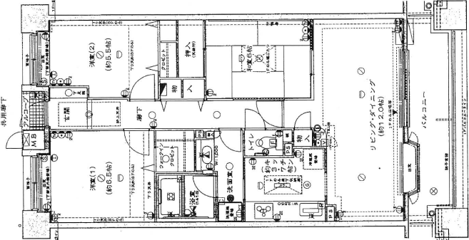
物件情報

桃山公園ロジュマン

  • 住所

    吹田市竹見台4丁目

  • マンション名

    桃山公園ロジュマン

  • 工事価格

    万円

  • 専有面積

    78.63㎡

  • 間取り

    3LDK

  • 工事期間

    約2ヶ月

  • ポイント

  • コンセプト

    人気の北摂エリアでのファミリー層をターゲットに、落ち着いた雰囲気ながら所々にオシャレさや、高級感を演出した内装に仕上がっております。駅まで徒歩1分、南向きで明るいリビングの空間を是非ご体感下さいませ。

  • リフォーム箇所

contact

お問い合わせ

ご依頼やご相談など
まずはお気軽にご相談下さい!

来店予約 売却査定 お問い合わせ