06-4866-6557

【営業時間】10:00~18:30
【定休日】水曜日

電話でのお問い合わせはこちら

06-4866-6557

【営業時間】10:00~18:30 【定休日】水曜日

お問い合わせはこちら

Copyright © 2025 株式会社 K-ROOM. All Rights Reserved.

WORKS

ロイヤルアーク花水都OSAKA

  • BEFORE

    ロイヤルアーク花水都OSAKA
  • AFTER

    ロイヤルアーク花水都OSAKA
  • BEFORE

    ロイヤルアーク花水都OSAKA
  • AFTER

    ロイヤルアーク花水都OSAKA

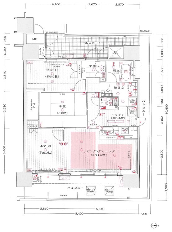
物件情報

ロイヤルアーク花水都OSAKA

  • 住所

    大阪市北区天神橋2丁目

  • マンション名

    ロイヤルアーク花水都OSAKA

  • 工事価格

    800万円

  • 専有面積

    72.47㎡

  • 間取り

    3LDK

  • 工事期間

    約2ヶ月

  • ポイント

    和室を洋室へ変更し、キッチン部分の天井はあえて折り下げ天井にし、木目調でお洒落な雰囲気に仕上げております。
    リビングには質感の良いエコカラットを採用しました。

  • コンセプト

    リバーサイドの眺めを活かせるようリビングスペースはお洒落な室内タイルや、上品なエコカラットを採用しカフェのような空間に仕上げました。
    なお窓の無い居室には室内窓を取り付け、リビングとの一体感を感じて頂けます。

  • リフォーム箇所

    ・キッチン、浴室、洗面台、トイレ、給湯器等の水廻りは総入れ替え
    ・クロス全面貼替
    ・フローリング全面貼替、上貼り
    ・建具総入れ替え
    ・ハウスクリーニング

contact

お問い合わせ

ご依頼やご相談など
まずはお気軽にご相談下さい!

来店予約 売却査定 お問い合わせ