06-4866-6557

【営業時間】10:00~18:30
【定休日】水曜日

電話でのお問い合わせはこちら

06-4866-6557

【営業時間】10:00~18:30 【定休日】水曜日

お問い合わせはこちら

Copyright © 2025 株式会社 K-ROOM. All Rights Reserved.

WORKS

メロディーハイム緑橋2番館

  • BEFORE

    メロディーハイム緑橋2番館
  • AFTER

    メロディーハイム緑橋2番館
  • BEFORE

    メロディーハイム緑橋2番館
  • AFTER

    メロディーハイム緑橋2番館

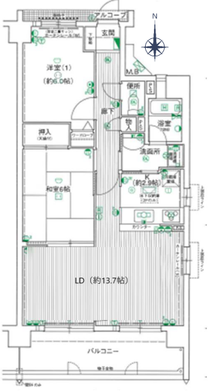
物件情報

メロディーハイム緑橋2番館

  • 住所

    大阪市東成区東中本2丁目

  • マンション名

    メロディーハイム緑橋2番館

  • 工事価格

    750万円

  • 専有面積

    62.57㎡

  • 間取り

    3LDK

  • 工事期間

    約2ヶ月

  • ポイント

    全室にエアコンを設置出来るように、梁を交わしながら先行配管を施しました。
    中部屋の4.5帖のお部屋は少しでも明かりが入るように室内窓を採用。
    リビング部分の収納の上部は室内タイルとマリン照明を付け、雰囲気のある空間に仕上げました。

  • コンセプト

    日常を少しでも「ワクワク」できるようにお洒落な雰囲気造りを心掛けました。家族の憩いの場であるリビングは最新のトレンドが満載です。(室内タイル、室内窓、折り下げ天井や間接照明等)

  • リフォーム箇所

    ・キッチン、浴室、トイレ、洗面台、洗濯機パン、給湯器の水廻りは総入れ替え
    ・間取り変更
    ・クロス全面貼替
    ・フローリング全面貼替
    ・建具総入れ替え
    ・ハウスクリーニング

contact

お問い合わせ

ご依頼やご相談など
まずはお気軽にご相談下さい!

来店予約 売却査定 お問い合わせ