06-4866-6557

【営業時間】10:00~18:30
【定休日】水曜日

電話でのお問い合わせはこちら

06-4866-6557

【営業時間】10:00~18:30 【定休日】水曜日

お問い合わせはこちら

Copyright © 2025 株式会社 K-ROOM. All Rights Reserved.

WORKS

シティータワー大阪福島

  • BEFORE

    シティータワー大阪福島
  • AFTER

    シティータワー大阪福島
  • BEFORE

    シティータワー大阪福島
  • AFTER

    シティータワー大阪福島

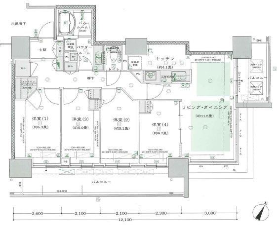
物件情報

シティータワー大阪福島

  • 住所

    大阪市福島区鷺洲3丁目

  • マンション名

    シティータワー大阪福島

  • 工事価格

    900万円

  • 専有面積

    83.13㎡

  • 間取り

    3LDK

  • 工事期間

    約2.5ヶ月

  • ポイント

    最新のトレンド(エコカラット、室内タイル、ニッチ、折り下げ天井)も取り入れつつ、タワーマンションならではの高級感を失わないようにバランスを考えリフォームしました。
    マンションのグレードや立地条件を含め、ニーズに沿った内装造りに努め、こだわりの詰まった内装となっております。

  • コンセプト

    タワーマンションならではの上質な空間をコンセプトに、クロスやフローリングの配色や、ダウンライトや間接照明の配色等にこだわりました。
    またキッチンや浴室、洗面などの住宅設備も仕様の高い設備を導入し、マンションのグレードに合わせたリフォーム内容となっております。

  • リフォーム箇所

    ・間取変更
    ・キッチン、浴室、トイレ、洗面台、洗濯機パン、入れ替え
    ・クロス全面貼替
    ・フローリング全面貼替、上貼り
    ・建具一部入れ替え
    ・ハウスクリーニング

contact

お問い合わせ

ご依頼やご相談など
まずはお気軽にご相談下さい!

来店予約 売却査定 お問い合わせ